Réf : 2311
Exclusif

La Roche-sur-Yon (85000) APPT T2 MEUBLE NEUF A LOUER

2 Pièce(s)
1 Chambre(s)

Les infos Essentielles

Caractéristiques Valeurs
Code postal 85000
Surface habitable (m²) 43,49 m²
Surface loi Boutin (m²) 43,49 m²
Nombre de chambre(s) 1
Caractéristiques Valeurs
Nombre de pièces 2
Meublé OUI
Etage 3
Ascenseur OUI
Caractéristiques Valeurs
Nb de salle d'eau 1
Type de cuisine Equipée
Mode de chauffage Electrique
Type de chauffage Convecteur
Caractéristiques Valeurs
Format de chauffage Individuel
Interphone OUI
Balcon OUI
Terrasse NON
Caractéristiques Valeurs
Cave NON
Année de construction 2025
Copropriété OUI

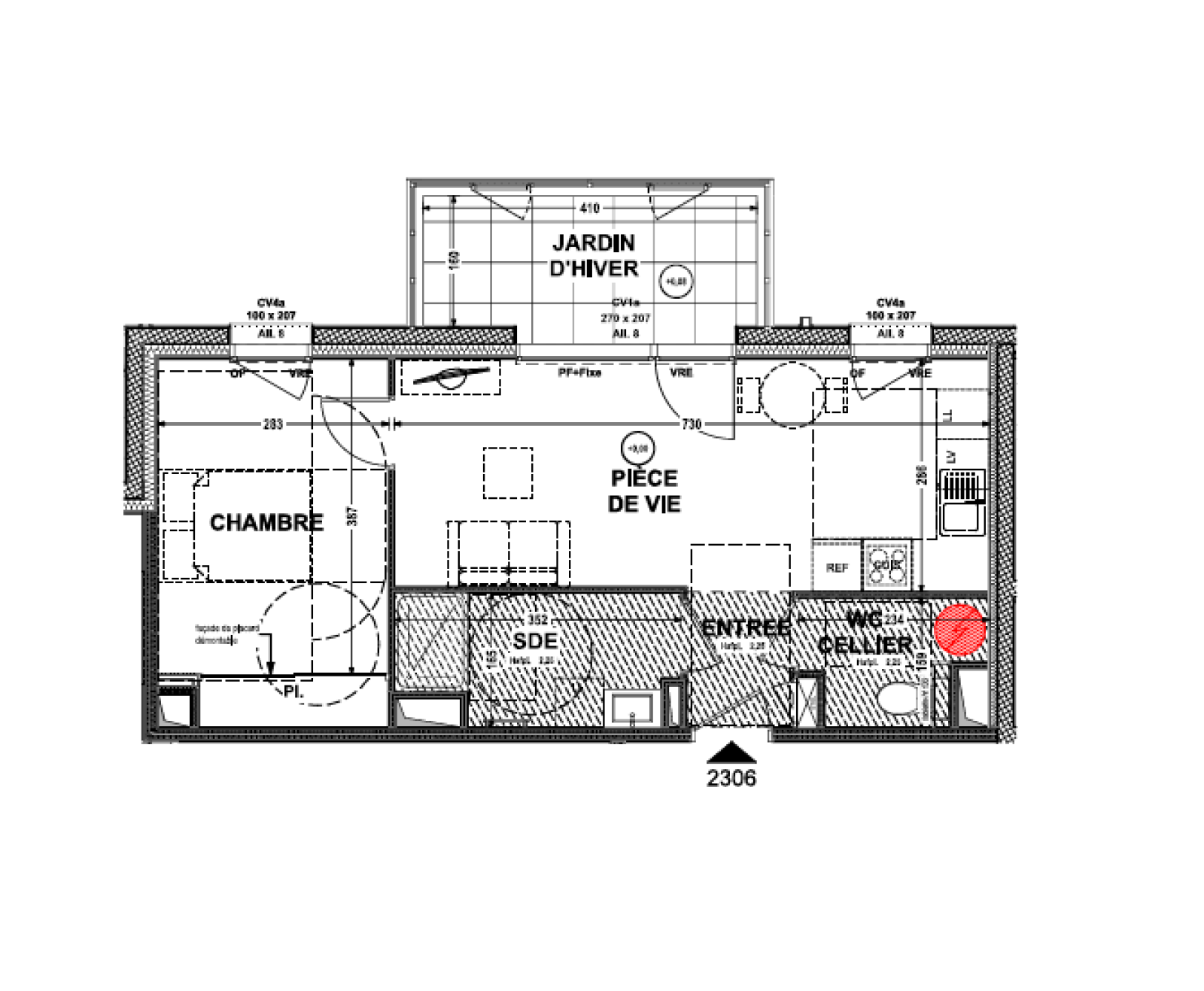
PLACE NAPOLEON - LA ROCHE SUR YON - Au 3ème étage d'une résidence NEUVE, un APPARTEMENT MEUBLE de TYPE 2 (44 m²) comprenant: entrée, cuisine aménagée et équipée ouverte sur séjour, chambre avec placard, salle d'eau et WC - Balcon (7 m²) - DISPONIBLE DEBUT JANVIER 2026 - Le loyer est de 620 € CC par mois (dont 40 € de charges : entretien parties communes, ordures ménagères et entretien annuel du ballon d'eau chaude thermodynamique) avec un dépôt de garantie correspondant à 2 mois de loyer hors charges soit 1 160€. Honoraires charge locataire : 453€ TTC (dont 129€ pour l'état des lieux) - DPE réalisé en novembre 2025 (nouvelle version) classé en B avec une estimation des dépenses annuelles d'énergie pour un usage standard comprise entre 360 € et 530 € (référence prix: 2021, 2022, 2023) - Les informations sur les risques auxquels ce bien est exposé sont disponibles sur le site Géorisques : georisques.gouv.fr. - N'hésitez pas à entrer en contact avec SIONNEAU Immobilier (sionneau-immobilier.fr) si ce bien vous interesse.

Découvrir le bien

Les infos Financières

Loyer CC* / mois 620 €
Honoraires TTC charge locataire 453 €
Dont état des lieux 129 €
Dépôt de garantie TTC 1 160 €
Charges locatives (Previsionnelles mensuelles les avec regularisation annuelle) 40 €

Nos outils

Imprimer

* CC : Charges comprises

Localisation Du bien

  • Commerces et santé
  • Loisirs
  • Ecoles
  • Transports
  • Pratique

Les infos Energetiques

DPE GES
DPE ANCIENNE VERSION
Rez de chaussée
entrée 2.16 m²

salon/sejour 20.66 m²

chambre 12.47 m²

salle d'eau 5.26 m²

WC 2.94 m²

balcon 6.56 m²

Intéressé(e) par Ce bien ?

* Champ obligatoire

Les informations recueillies sur ce formulaire sont enregistrées dans un fichier informatisé par La Boite Immo agissant comme Sous-traitant du traitement pour la gestion de la clientèle/prospects de l'Agence / du Réseau qui reste Responsable du Traitement de vos Données personnelles.
La base légale du traitement repose sur l’intérêt légitime de l'Agence / du Réseau.
Elles sont conservées jusqu'à demande de suppression et sont destinées à l'Agence / au Réseau.
Conformément à la loi « informatique et libertés », vous pouvez exercer votre droit d'accès aux données vous concernant et les faire rectifier en contactant l'Agence / le Réseau.
Si vous estimez, après avoir contacté l'Agence / le Réseau, que vos droits « Informatique et Libertés » ne sont pas respectés, vous pouvez adresser une réclamation à la CNIL.
Nous vous informons de l’existence de la liste d'opposition au démarchage téléphonique « Bloctel », sur laquelle vous pouvez vous inscrire ici : https://www.bloctel.gouv.fr 
Dans le cadre de la protection des Données personnelles, nous vous invitons à ne pas inscrire de Données sensibles dans le champ de saisie libre
Ce site est protégé par reCAPTCHA, les Politiques de Confidentialité et les Conditions d'Utilisation de Google s'appliquent.
contacter l'agence
Ces biens peuvent aussi vous intéresser
Exclusif
La Roche-sur-Yon (85000)

A LOUER APPT. T.2 MEUBLE PROCHE GARE

Exclusif
La Roche-sur-Yon (85000)

A LOUER - MAISON MEUBLEE TYPE 2