Réf : 2308
Exclusif

La Roche-sur-Yon (85000) LA ROCHE SUR YON - Maison récente 3 chambres

4 Pièce(s)
3 Chambre(s)
1 Salle(s) de bain

Les infos Essentielles

Caractéristiques Valeurs
Code postal 85000
Surface habitable (m²) 79,39 m²
Nombre de chambre(s) 3
Nombre de pièces 4
Caractéristiques Valeurs
Nombre de niveaux 2
Ascenseur OUI
Nb de salle de bains 1
Nb de salle d'eau 1
Caractéristiques Valeurs
Mode de chauffage Gaz
Type de chauffage TRAD_TYPE_CHAUFF_CHAUDIERE
Format de chauffage Individuel
Terrasse OUI
Caractéristiques Valeurs
Année de construction 2016
Copropriété OUI
Lot n° 52 - 37 - 36
nombre de lots 103
Caractéristiques Valeurs
Quote Part annuelle des charges 1 611 €
plan de sauvegarde NON
statut du syndic pas de procédure en cours

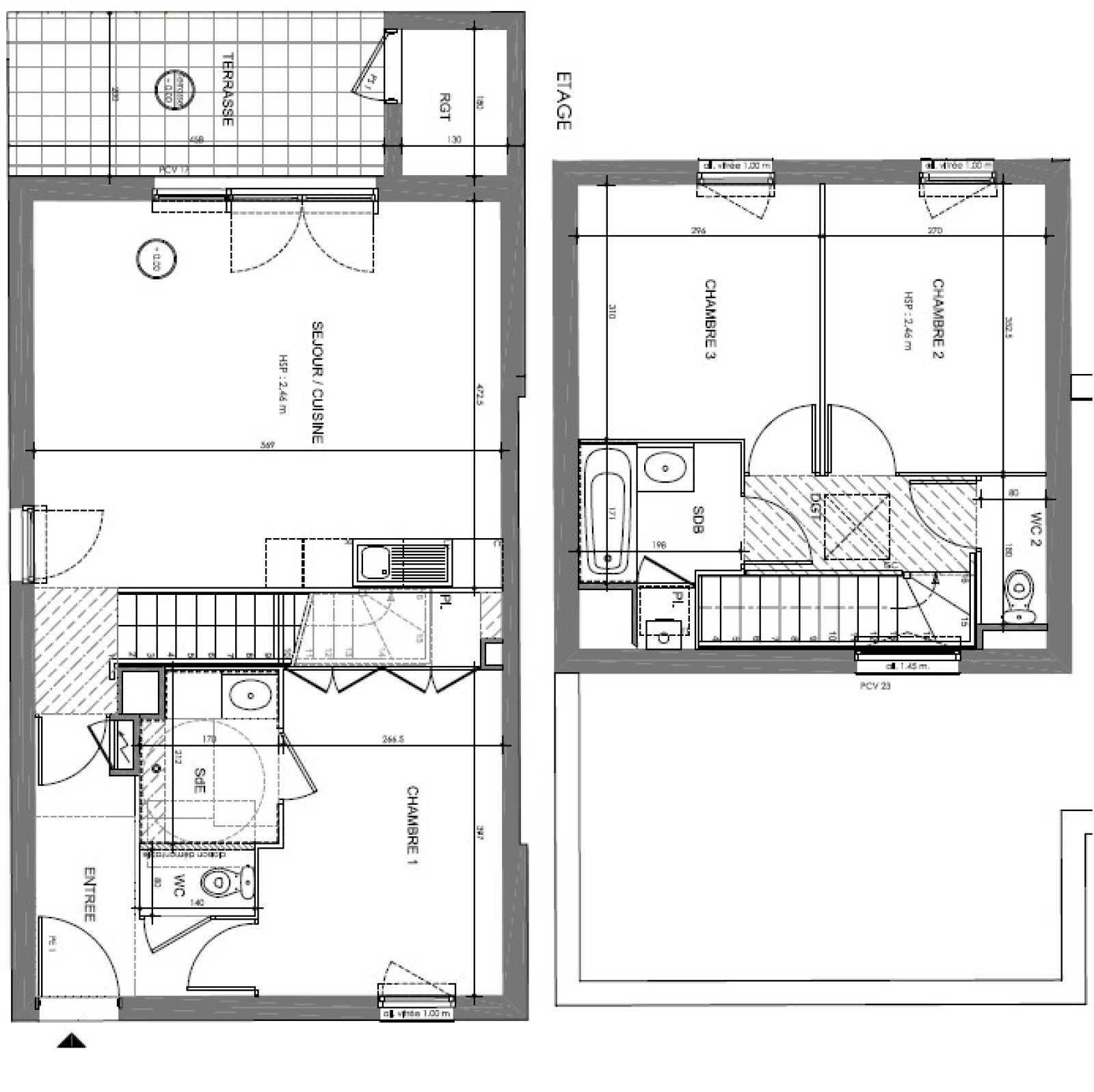
A deux pas de la Place Napoléon, cette agréable maison datant de 2016, d’environ 78 m² sur deux niveaux offre confort, fonctionnalité et espace extérieur. Au rez-de-chaussée, vous découvrirez une cuisine aménagée et équipée, ouverte sur un séjour lumineux, une chambre avec dressing, une salle d’eau et WC séparés.

À l’étage, l’espace nuit se compose de deux chambres, une salle de bains et un WC indépendant.

À l’extérieur, profitez d’un jardinet et d’une terrasse privatifs, parfaits pour les moments de détente. La maison dispose également de deux places de parking.

Le bien est en copropriété horizontale.

Disponible en juin 2026.

Les informations sur les risques auxquels ce bien est exposé sont disponibles sur le site Géorisques : www.georisques.gouv.fr

Les infos Financières

Prix de vente honoraires TTC inclus 241 500 €
Prix de vente honoraires TTC exclus 230 000 €
Honoraires TTC à la charge acquéreur 5 %
Charges 85 €
Taxe foncière annuelle 1 103 €

Nos outils

Imprimer

Localisation Du bien

  • Commerces et santé
  • Loisirs
  • Ecoles
  • Transports
  • Pratique

Les infos Energetiques

DPE GES

Montant estimé des dépenses annuelles d'énergie pour un usage standard est compris entre 680 € et 960 € . Prix moyens des énergies indexés sur les années 2021, 2022 et 2023 (abonnements compris).

Rez de chaussée
Terrasse 9.20 m²

Jardin 94.95 m²

Remise 2.35 m²

Terrain 94.95 m²

Entrée 5.37 m²

salon/sejour 28.6 m²

W.C. 1.15 m²

Chambre avec placards 17.25 m²

Chambre 9.55 m²

Etage 1
Palier 3.15 m²

Salle de Bain 3.55 m²

Chambre 9.33 m²

W.C. 1.44 m²

Intéressé(e) par Ce bien ?

* Champ obligatoire

Les informations recueillies sur ce formulaire sont enregistrées dans un fichier informatisé par La Boite Immo agissant comme Sous-traitant du traitement pour la gestion de la clientèle/prospects de l'Agence / du Réseau qui reste Responsable du Traitement de vos Données personnelles.
La base légale du traitement repose sur l’intérêt légitime de l'Agence / du Réseau.
Elles sont conservées jusqu'à demande de suppression et sont destinées à l'Agence / au Réseau.
Conformément à la loi « informatique et libertés », vous pouvez exercer votre droit d'accès aux données vous concernant et les faire rectifier en contactant l'Agence / le Réseau.
Si vous estimez, après avoir contacté l'Agence / le Réseau, que vos droits « Informatique et Libertés » ne sont pas respectés, vous pouvez adresser une réclamation à la CNIL.
Nous vous informons de l’existence de la liste d'opposition au démarchage téléphonique « Bloctel », sur laquelle vous pouvez vous inscrire ici : https://www.bloctel.gouv.fr 
Dans le cadre de la protection des Données personnelles, nous vous invitons à ne pas inscrire de Données sensibles dans le champ de saisie libre
Ce site est protégé par reCAPTCHA, les Politiques de Confidentialité et les Conditions d'Utilisation de Google s'appliquent.
contacter l'agence
Ces biens peuvent aussi vous intéresser
Exclusif
Nouveauté
La Roche-sur-Yon (85000)

Maison de ville 3 chambres LA ROCHE SUR YON

Nouveauté
La Roche-sur-Yon (85000)

LA ROCHE SUR YON - Maison de ville 2 chambres 80m²